I NOSTRI SERRAMENTI
Infissi in legno e legno alluminio
Il centro nevralgico della nostra azienda è la produzione di serramenti in legno (e legno alluminio su richiesta) realizzati a regola d'arte secondo le pratiche artigianali di falegnameria.
Possiamo sviluppare con precisione ogni vostro progetto grazie all'utilizzo di 2 macchine a controllo numerico e di una lavorazione coordinata e seguita in ogni sua fase dai titolari della Cardone F.lli, Osvaldo e Roberto Cardone.
Ogni elemento viene solitamente prodotto a partire da travi in pino lamellare finger joint (o altra essenza a seconda delle richieste), sinonimo di stabilità nel tempo perchè a vene incrociate e prive di nodi, che vengono tagliate secondo le misure necessarie per ogni elemento (montanti, traverse, etc)
Questi pezzi quindi vengono prelevati, sgrossati e inseriti nella fresa a controllo numerico che realizza in base al disegno CAD le varie sagomature, i tenoni, le asole e le sedi ferramenta e guarnizioni necessari.
Una volta concluso questo processo, i pezzi vengono assemblati con colla vinilica, uniti tra loro nella pressa secondo configurazione finale. Sottolineiamo che nella nostra falegnameria produciamo ancora asole cieche e serramenti ''con calcagno'' : questo fa si che la colla rimanga nelle asole e che l'area a contatto tra le parti giunte sia maggiore. La conseguenza di ciò è una maggiore solidità e stabilità dell'inifisso.
I serramenti a questo punto vengono squadrati e sottoposti a levigatura, quindi preparati per la fase di verniciatura o laccatura che esternalizziamo presso aziende di zona.
Al rientro presso i nostri magazzini i serramenti sono ''vestiti'' di tutti gli accessori richiesti e necessari in primis ferramenta e guarnizioni. Le cerniere utilizzate solitamente sono di tipo Anuba.
In fase di installazione, seguita da uno dei titolari, vengono montati i vetri con relativi fermavetri.
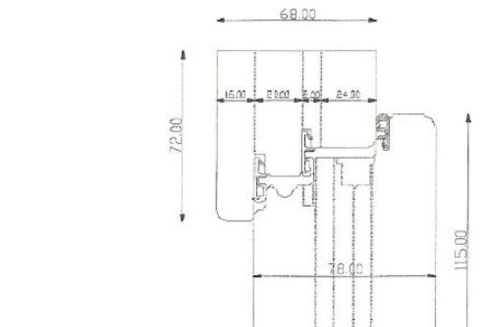
I nostri infissi sono conformi alle normative CE relative alle prestazioni acustiche e termiche: lo spessore dei telai mobili è di 78 mm e tutti i nostri prodotti sono aria 4 con minima luce tra anta e telaio, quindi con minor dispersione termica oltre che con ferramenta incassata nelle parti lignee. Belli, solidi e funzionali.
Realizziamo ogni tipologia di serramento (tipo torino, piemontese, etc) e persiana (tipo americana, piemontese, ligure, etc) oltre che a misura secondo disegno del progettista.
Preferiamo quando possibile l'utilizzo di legni certificati FSC con tagli a gestione controllata.
Contattaci per maggiori informazioni sulla nostra produzione o per un preventvo gratuito.
Cardone F.lli Via Fossano 31 Trinità CN - 0172.66118 - info@cardone.it
